25 DE MAYO
22
PROYECTO
25 DE MAYO 22
AÑO
2012-2016
PROYECTO Y DIRECCIÓN
CUATRO ARQUITECTURA | Arqs. SERGIO GIARROCCO, GASTON PIAZZA, GONZALO ZORZOLI y CINTIA FERRARO
UBICACIÓN
25 DE MAYO 22 | BERNAL | QUILMES
UBICACIÓN
Edificado sobre un lote de terreno muy importante, ubicado sobre la calle 25 de Mayo 22, en pleno centro de Bernal, a 50mts. de la Biblioteca Popular Mariano Moreno y de la Av. San Martin, con gran afluente de transporte público y a media cuadra de la estación de trenes de Bernal. Ubicado en pleno polo gastronómico en desarrollo y a una cuadra del centro comercial de la calle 9 de Julio.
INTRODUCCIÓN
Edificio Moreno 224, de viviendas construidas con material de primera calidad y detalles de categoría, con gran amplitud de los espacios ofreciendo gran confort para la vivienda y local comercial. Construcción terminada hace aprox. 5 años. Con ascensor de tecnología de última generación, con pantallas en cabina y PB, palieres con revestimientos importados y detalles de calidad en puertas y gráfica.
Revestimientos en Fachada y Hall en Hormigón a la vista, acero inoxidable, vidrio y producto Sueco de Baquelita, presentando una fachada ventilada de diseño distintivo. Se le dio particular importancia a los espacios para habitar pensando en el confort cotidiano de cada propietario.
SUM para 40 personas
Parrilla, Cocina y Terrazas
Spa
Piscina
Solárium
Bauleras y Cocheras
DESCRIPCIÓN
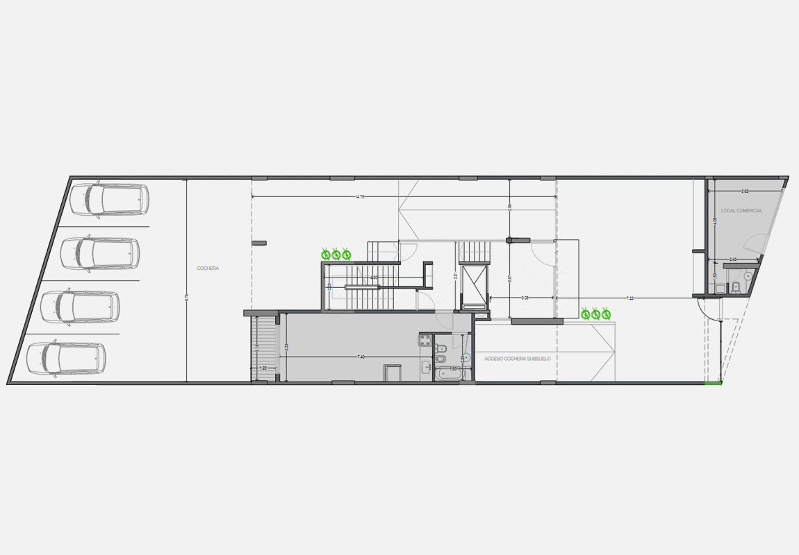
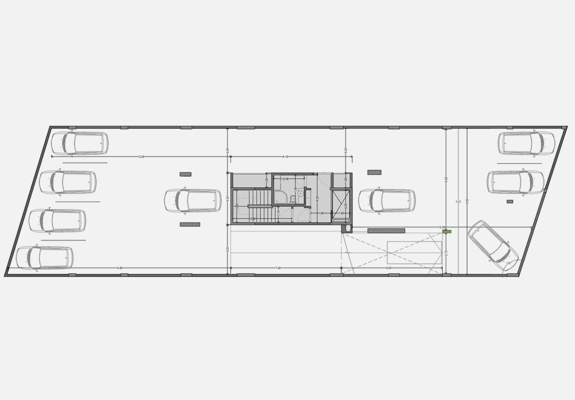
Edificio de vivienda y comercial de calidad Premium, asentado en un lote de terreno de 10 mts de frente x 45 mts de largo, construido entre medianeras con Subsuelo, PB y 10 pisos más terrazas En subsuelo y planta Baja contamos con 15 cocheras con rampa, bauleras, hall de acceso y Local comercial sobre línea municipal; en entrepiso hay una sola unidad monoambiente de 40 mt2. Desde el 1° piso hasta el octavo inclusive encontramos semipisos de 2 y 3 ambientes con balcón y terraza cada uno. Cada unidad de 2 ambientes es de 55 mt2 y las de 3 ambientes de 74 mt2 cada. En el 9° piso nos encontramos con una gran SUM con cocina y parrilla en una de las terrazas, mas un hermoso SPA con baño FINLANDES y ducha ESCOCESA, ADEMAS DE OTRA TERRAZA CON VERDE Y SOLÁRIUM. En el 10° piso se agrego una piscina construida totalmente en hormigón con asoleamiento de todo el dia. Nota: la construcción de dicha piscina se decidio después de tener mas del 80% del edificio vendido. Total 17 unidades de vivienda, 15 cocheras, 1 local comercial y bauleras.
UNIDADES SUSTENTABLES
CREEMOS EN EL CUIDADO DEL MEDIO AMBIENTE












