VICENTE LÓPEZ
205
¡CONSULTÁ AHORA!
PROYECTO
VICENTE LÓPEZ 205
AÑO
2020-2022 | Finalización DIC. 2022
PROYECTO Y DIRECCIÓN
AUTUNNO GALVEZ | AVATTE VARELA
UBICACIÓN
VICENTE LÓPEZ 205 ESQ. LA RIOJA | QUILMES
Consultá oportunidades y planes de financiación
11-5040-0920UBICACIÓN
Emplazado sobre la Av. Vicente López, una de las arterias más importantes de la zona, garantizando el acceso a múltiples medios de transporte, y una rápida llegada a centros comerciales y a la Autopista Buenos Aires-La Plata.
INTRODUCCIÓN
Pensado para vos, nace Vicente López 205, cuidando el medioambiente con propuestas sustentables. Un proyecto emplazado sobre la Av. Vicente López, en un privilegiado lote en esquina. Todas las unidades tienen orientación norte, lo que propicia la entrada de luz y sol durante todo el año. Se proyecta al exterior con amplias terrazas, ofreciendo vistas inigualables. Modernas unidades de 2 y 3 Ambientes y estudios apto profesional, diseñadas bajo un concepto integral; diseño, funcionalidad, habitabilidad y estética distintiva.
Un edificio en el que se priorizaron las expansiones a lo largo de todo su recorrido. Vicente López 205 ofrece amenities completos, incluyendo un SUM totalmente equipado, Piscina en Terraza con todas las vistas, Solárium y Cocheras en planta baja. Vicente López 205 se destaca por la calidad de sus terminaciones, detalles de tecnología de avanzada que propician el cuidado del medioambiente y el diseño a favor del disfrute de los espacios.
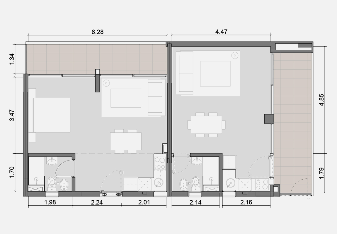
Estudios apto profesional y unidades de 2 y 3 ambientes
SUM con terraza
Piscina 8mts. en terraza
Coworking en terraza
Ascensor última generación
Solárium
Cocheras en planta baja
DESCRIPCIÓN
Pensado para vos, nace Vicente López 205, cuidando el medioambiente con propuestas sustentables. Un proyecto emplazado sobre la Av. Vicente López, en un privilegiado lote en esquina. Todas las unidades tienen orientación norte, lo que propicia la entrada de luz y sol durante todo el año. Se proyecta al exterior con amplias terrazas, ofreciendo vistas inigualables. Modernas unidades de 2 y 3 Ambientes y estudios apto profesional, diseñadas bajo un concepto integral; diseño, funcionalidad, habitabilidad y estética distintiva.
UNIDADES SUSTENTABLES
CREEMOS EN EL CUIDADO DEL MEDIO AMBIENTE
Orientación Norte
aprovecha la luz natural del sol, reduciendo la necesidad de usar luz eléctrica.
Sistema Solar Heat Pipe
de apoyo para calefacción central por piso radiante y agua caliente sanitaria con muy bajo consumo de gas.
Paneles Solares Fotovoltaicos
en terrazas para abastecer a los espacios comunes, ahorrando energía eléctrica y obteniendo bajas expensas.
Aberturas de Aluminio
de alta prestación y primera calidad con DVH.
Sistema de Recolección de Agua de Lluvia
para abastecer riego, limpieza y mochilas de inodoros.
Consultá oportunidades y planes de financiación




















