CRAMER
512
PROYECTO
CRAMER 512
AÑO
2009-2010
PROYECTO Y DIRECCIÓN
Arq. DANIEL PERSICO
UBICACIÓN
CRAMER 512 | BERNAL ESTE | QUILMES
UBICACIÓN
Barrio Villa Cramer, a 7 cuadras del acceso a Au. La Plata / Bs. As. bajada Bernal y a 2 cuadras de la estación de trenes, sobre Av. Cramer con varias líneas de Colectivos. Construcción terminada hace aproximadamente 11 años.
INTRODUCCIÓN
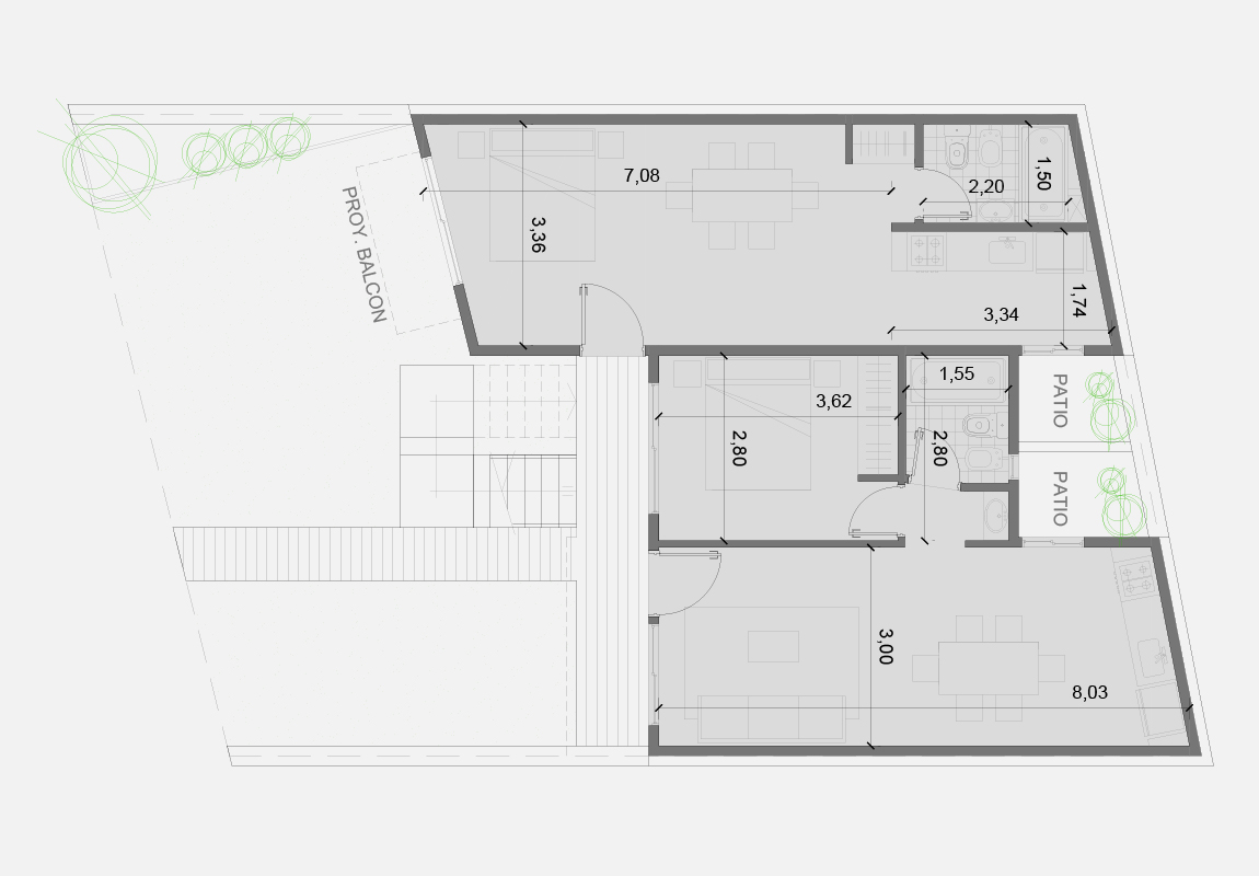
Edificio de vivienda standard de buena calidad en PB y 2 pisos más terrazas, consta de 3 deptos. monoambientes con balcón de 36 mt2 c/u, y 3 deptos. de 2 ambientes con balcón de 41,50 mt2 c/u. Los deptos. Del ultimo piso cuentan con terraza propia. Total 6 unidades.
Es un edificio standard, simpático, de muy bajas expensas, ubicado en el barrio Villa Cramer a 2 cuadras de la estación de Bernal.
NO posee ascensor
DESCRIPCIÓN
Edificio de vivienda en PB y 2 pisos x escalera, 6 unidades en total, mas 2 espacios guardacoches.
UNIDADES SUSTENTABLES
CREEMOS EN EL CUIDADO DEL MEDIO AMBIENTE


