NUESTRA SEÑORA HERMANAS DE LA MISERICORDIA
CONVENTO
PROYECTO
NUESTRA SEÑORA HERMANAS DE LA MISERICORDIA CONVENTO
AÑO
2017-2018
PROYECTO
ESTUDIO INARCH
DIRECCIÓN
Arq. MANUEL GALVEZ Y ALEJANDRO AVATTE
UBICACIÓN
SAN NICOLAS 3850 | VILLA DEVOTO | CABA
UBICACIÓN
El edificio se encuentra emplazado sobre un lote de terreno de aproximadamente 10.000 mt2, en la mejor zona de Villa Devoto, a 2 cuadras de la plaza Devoto y a pasos de la estación de trenes, con inmejorables accesos.
INTRODUCCIÓN
Conversion de Convento, construcción de 130 años de antigüedad en 3 plantas a geriátrico moderno. Intervencion sobre 6000 mt2 aproximadamente. El proyecto trato la adecuación del lugar para su habitabilidad por personas mayores con capacidades diferentes. Construcción terminada hace aprox 3 años.
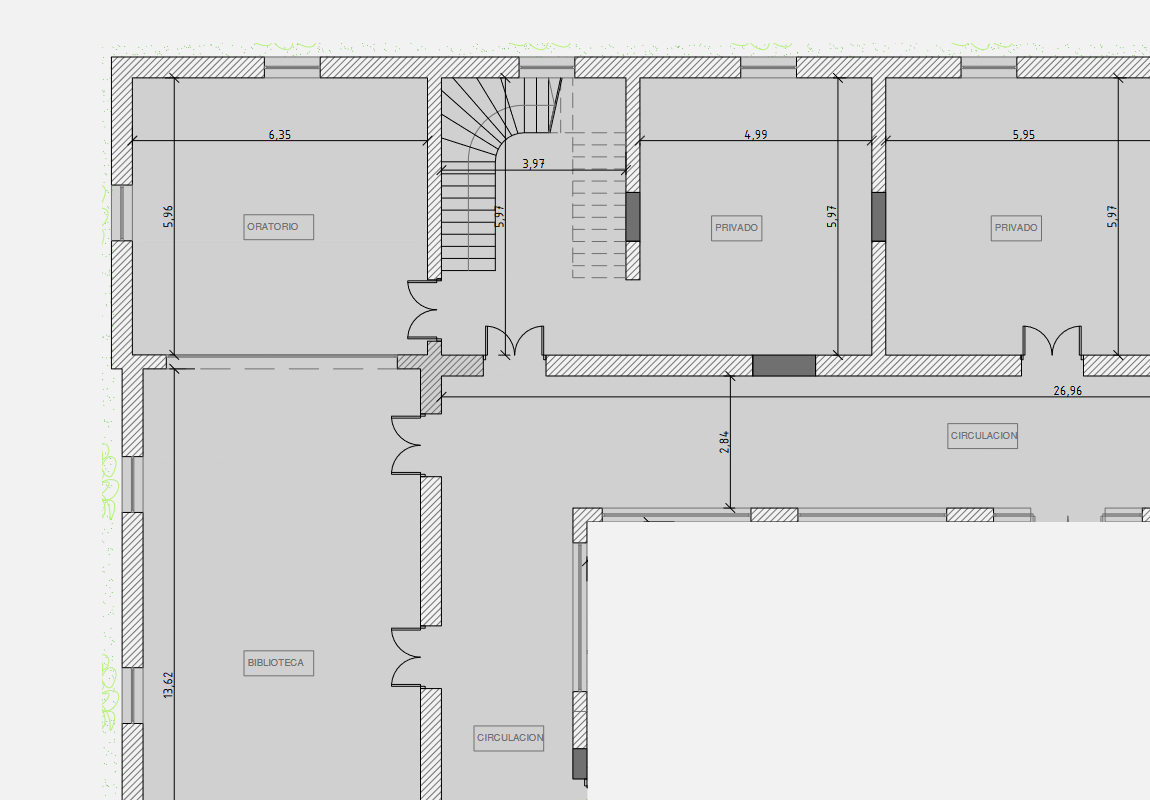
Se trata de la remodelación, puesta en valor y funcionamiento de un edificio tipo convento antigüo mas parroquia,de subsuelo, planta baja y 1er piso mas azoteas, asentado sobre un lote de terreno q ocupa la manzana entera, en pleno centro comercial de Villa Devoto, a pasos de la plaza Devoto y la estación de trenes.
Acceso al edificio y a la Iglesia con tratamiento de fachada
Galería cubierta y acceso a las habitaciones
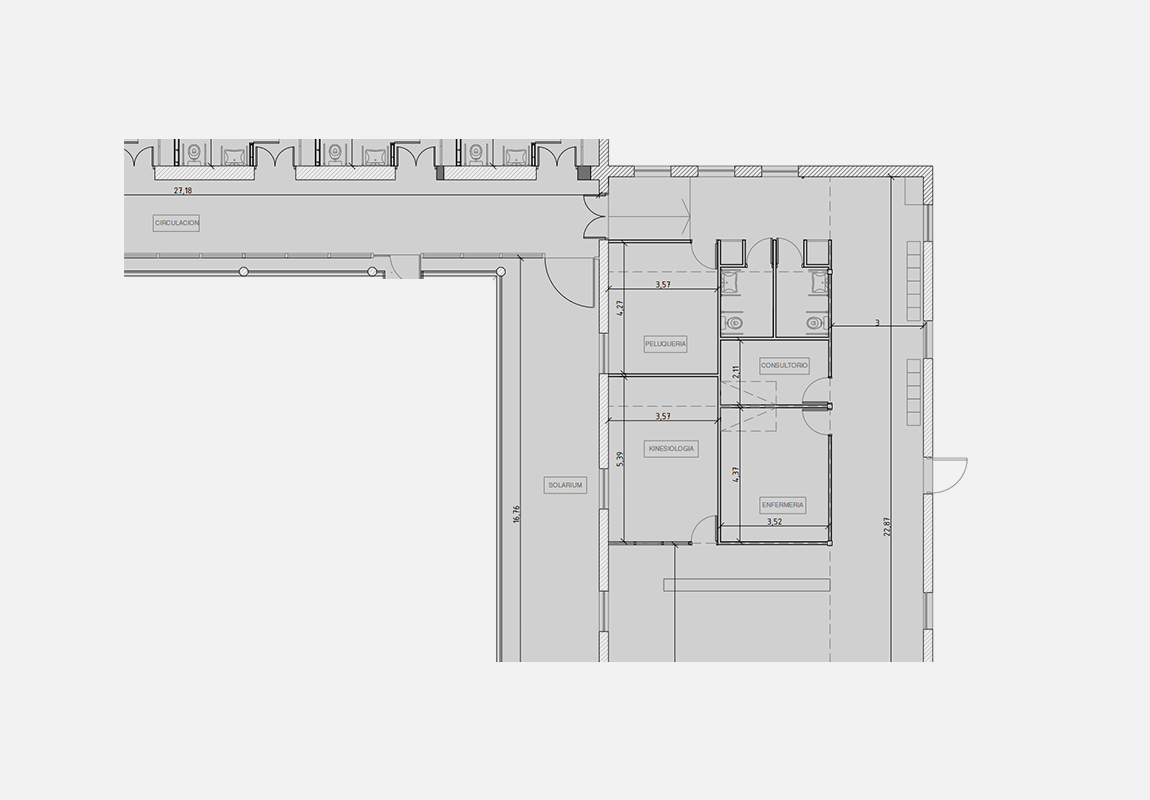
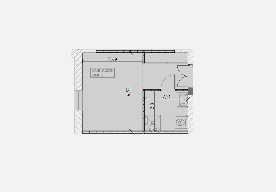
12 habitaciones con baño privado
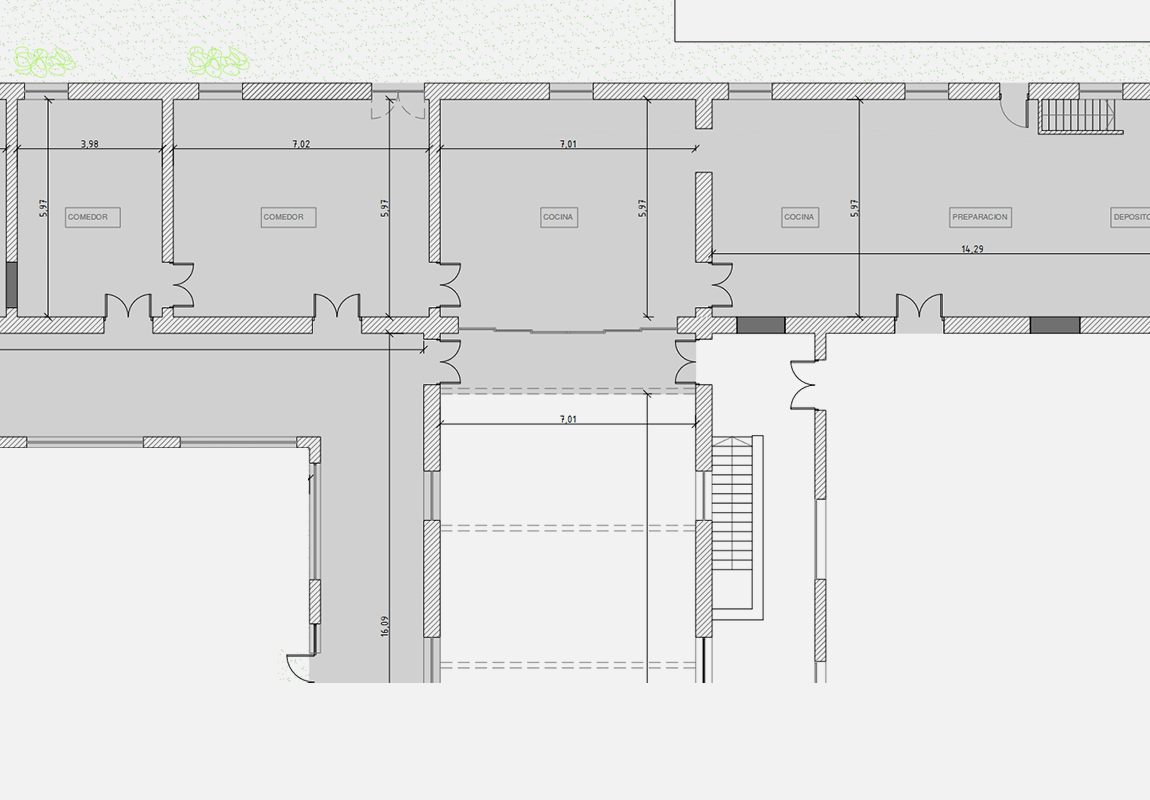
Cocina y Comedores
Sala de máquinas
Remodelación de acceso vehicular y cocheras
Tanque de agua e instalaciones sanitarias
Instalación de gas y calefacción
Instalación eléctrica e iluminación
DESCRIPCIÓN
1er piso: Construcción de 12 habitaciones muy espaciosas, todas con baño privado de 3 x 3 mts para personas con capacidades diferentes.
Construcción de nueva galería cubierta para generar acceso a las nuevas habitaciones, con cerramientos de aluminio de piso a techo, 6 mts. de altura con IBM y DVH.
Cabe destacar que en el proceso constructivo encontramos columnas de fundición de hierro, edad 130 años, dentro de paredes que se demolieron para retirar las mismas,
izándolas para generar la galería cubierta.
Planta Baja: Construcción de cocina para el futuro geriátrico, sala de máquinas, tratamiento de salones comedores, oficinas, privados, depósito de ropa blanca,
acceso al edificio y a la Iglesia con tratamiento de fachada afectada a patrimonio histórico.
Construcción de sala de maquinas con nuevos tableros y generador eléctrico para la futura potencia requerida por el geriátrico y tanque de agua específico para incendio
junto con su sala de bombas exclusiva.
Remodelación de acceso vehicular y cocheras.
Subsuelo: Construcción de nuevo tanque de agua mas instalaciones para la futura demanda de agua sanitaria y calefacción del geriátrico. Proyecto y realización de todas las instalaciones nuevas, gas, sanitaria, eléctrica, iluminación y calefacción.




















