LOMAS DE ZAMORA
141
(ex 71)
PROYECTO
LOMAS DE ZAMORA 141
(ex 71)AÑO
2012
PROYECTO Y DIRECCIÓN
Arq. DANIEL ALEJANDRO PERSICO
UBICACIÓN
LOMAS DE ZAMORA 141 (ex 71) | BERNAL | QUILMES
UBICACIÓN
Ubicado en el barrio Villa Cramer a 20 mts. de Av. Cramer, a unas cuadras del barrio privado Nuevo Quilmes y el acceso a Au. Bs. As. / La Plata. Tambien se encuentra a unas cuadras de la estación de trenes de Don Bosco.
INTRODUCCIÓN
Es un edificio standard, simpático, de bajas expensas, construcción de 1era calidad, Ascensor, Escaleras y palieres con revestimientos y detalles de calidad. Revestimientos en fachada y hall con lajas de Brasil. A partir de este edificio comenzamos a darle mucha importancia a los espacios verdes, generando una PB con muchas plantas y Garden Block, dando una sensación de todo verde.
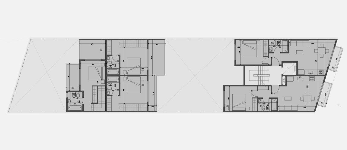
DESCRIPCIÓN
Edificio de vivienda en PB y 3 pisos con Ascensor y escaleras, 11 unidades en total, mas 4 cocheras cubiertas y 4 descubiertas.
UNIDADES SUSTENTABLES
CREEMOS EN EL CUIDADO DEL MEDIO AMBIENTE











